Konstruktionen im Stahlbau mit hohem Anspruch an die Wirtschaftlichkeit, die durch Montagefreundlichkeit und wiederkehrende typisierte Verbindungen erreicht wird.

Der hochfeste Werkstoff Stahl ermöglicht filigrane, in Kombination mit Glas sehr transparente Konstruktionen. Durch Vorfertigung der Bauteile in der Werkstatt sind bei Stahlbauten sehr kurze Montagezeiten auf der Baustelle möglich. Eine gute und detaillierte Planung im Ingenieurbüro ist hierfür Voraussetzung. Bei der Umsetzung komplizierter Stahlkonstruktionen greifen wir auf die Unterstützung von spezialisierten Stahlbaukonstrukteuren zurück.

Bemessung von Stahlbauteilen, Stahlverbindungen und räumlichen Strukturen nach Eurocode 3 (DIN EN 1993-1-1/ NA:2010/12) ehemals DIN 18800. Berücksichtigung von bauphysikalischen Anforderungen bei der Dimensionierung und Konstruktion der Stahlbauteile.

Umsetzung der Gebrauchstauglichkeit und der Betriebsfestigkeit (Ermüdungsnachweis) bei Lastwechselbeanspruchungen.

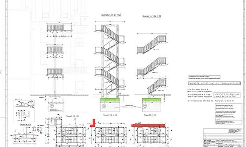
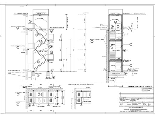
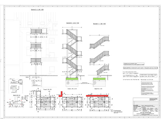
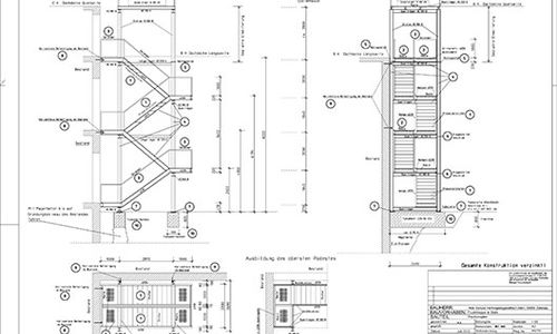
Erstellen von Positionsplänen und Konstruktionsplänen.